· 電源側的接線
按“圖1 ”焊接電源背面接線圖“正確接線。

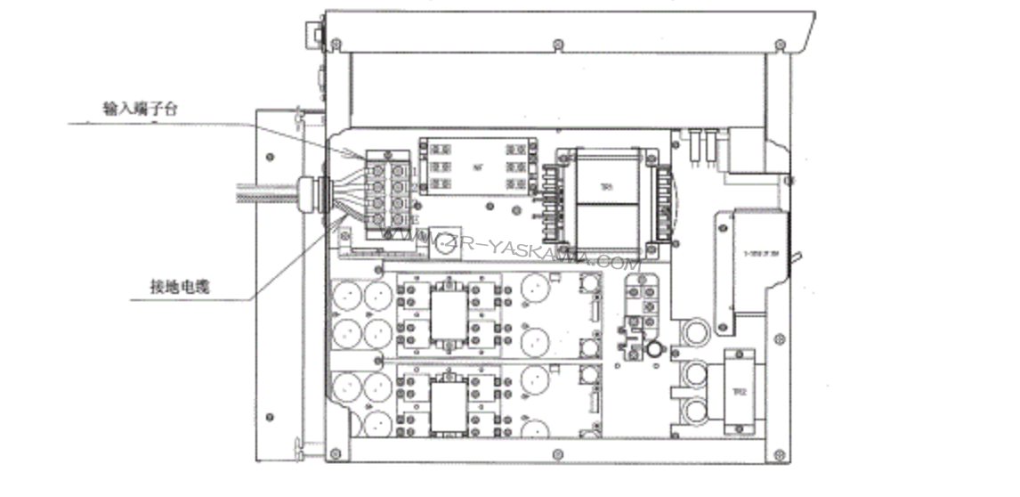
- 接地電纜
· 焊接側的接線
按“圖 2焊接電源前面板接線圖”正確接線。

- 母材專用電纜:母材專用電纜接在母材和焊接電源輸出的()側之間。
- 焊接電壓檢測線:焊接電壓檢測線接在母材和焊接電源背面的“CON 7”插座間。
· 控制電纜的接線
連接焊接電源背面的各種插頭的電纜。確保插頭上的固定螺套擰緊。
- 控制電纜接在控制柜和“CON3”插座間。
- 電機電纜接在送絲機構和“CON4”插座間。
- 編碼器電纜接在送絲機構和“CON5”插座間。
常見yaksawa機械手焊機故障及安川焊機維修方法
· 焊機跳閘
- 原因分析:YASKAWA機械手焊機跳閘可能由過載保護、短路保護、接地故障或電源問題導致。
- 維修步驟:
斷開電源,確保維修過程安全。
檢查所有電纜連接是否牢固,無松動或脫落現象。
使用萬用表測量輸入電源電壓,確保其穩定而符合yaskawa焊機要求。

- 原因分析:如安川機械手焊機出現ERR304、ERR701、ERR401等報警故障,需要排查發生故障的原因和維修。
- 維修步驟:
我們要根據不同類型的焊機報警,安川機器人維修方法也會有所不同。
對控制器進行檢查,查找可能的硬件故障,如電路板損壞、電容器老化等,并檢查軟件是否正常運行。
檢查yaskawa機械臂焊機內部傳感器是否損壞或線路連接是否松動,如有必要,更換損壞的傳感器或重新連接線路。
· 焊絲不熔
- 原因分析:可能由安川焊接機械手焊機送絲機構故障、焊接參數設置不當或焊絲質量問題導致。
- 維修步驟:
拆開送絲機構,檢查滾輪、導管等部件是否損壞或松動。
拆下焊槍導電嘴,檢查其磨損情況。
根據焊接材料和厚度,重新調整焊接電流、電壓、速度等參數。
當然,YASKAWA機器人焊機故障還有很多,有些故障相當復雜,需要由專業的技術人員來處理。如果嘗試自己修復可能會對安川焊機造成二次傷害,得不償失哦!